Office – The Management
Work Well.
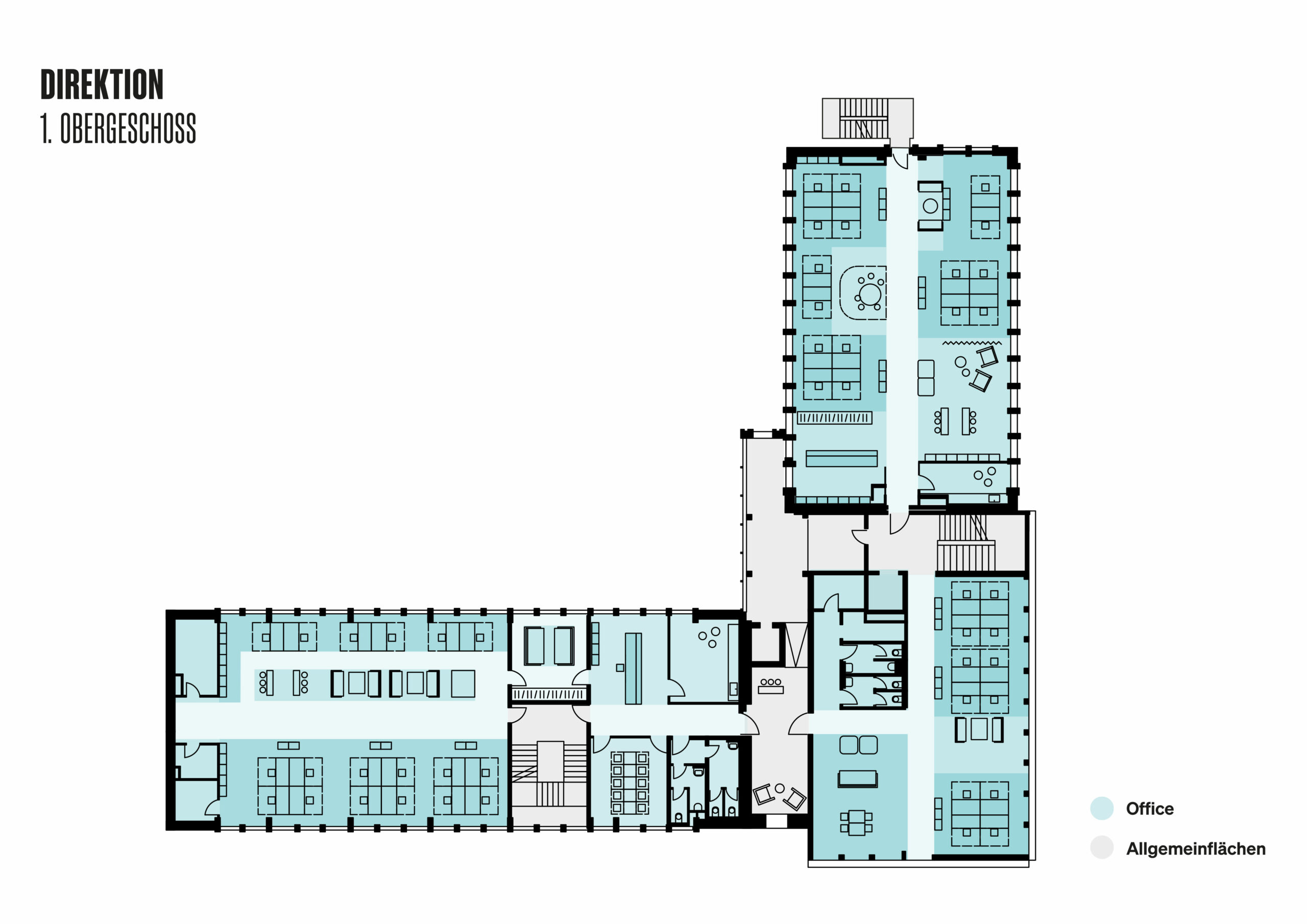
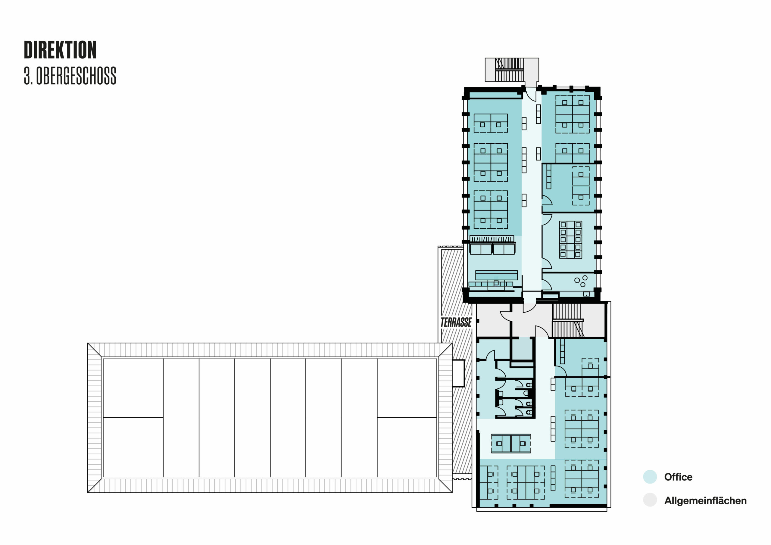
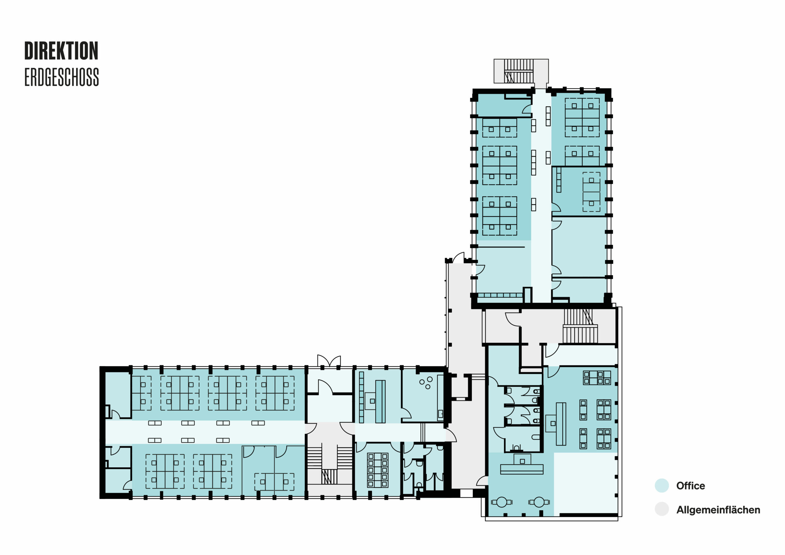
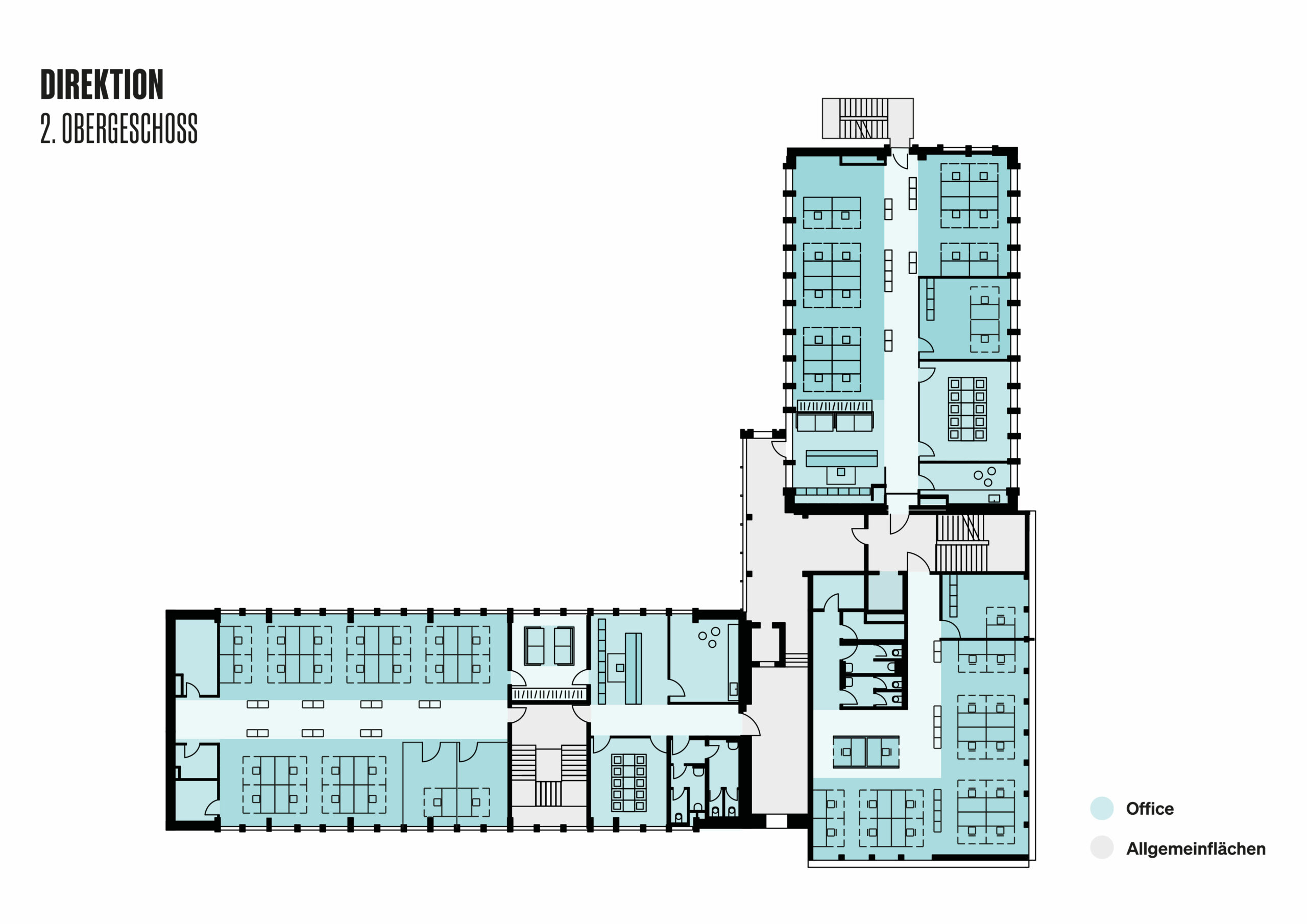
The office spaces provide clear layouts that facilitate focused work and open collaboration. Designed for usage concepts that adapt flexibly to teams and tasks.
| Building | 4,300 m² (GFA) |
|---|---|
| Divisible from | 250 m² |
| Full storeys | 3 – 5 |
| Usage | Office |
| Available | 2027 |
| Accessibility | Wheelchair access on all floors |
| Distinctive feature | Catering, shared roof terrace (partial exclusive use possible) |
Indicative floor plan
Get in touch
Send us your non-binding enquiry now.