3001 – Warehouse
Store simple.
The warehouse combines historic character with modern functionality. Spanning approximately 2,000 m², it offers flexible space for storage, light manufacturing or urban logistics.
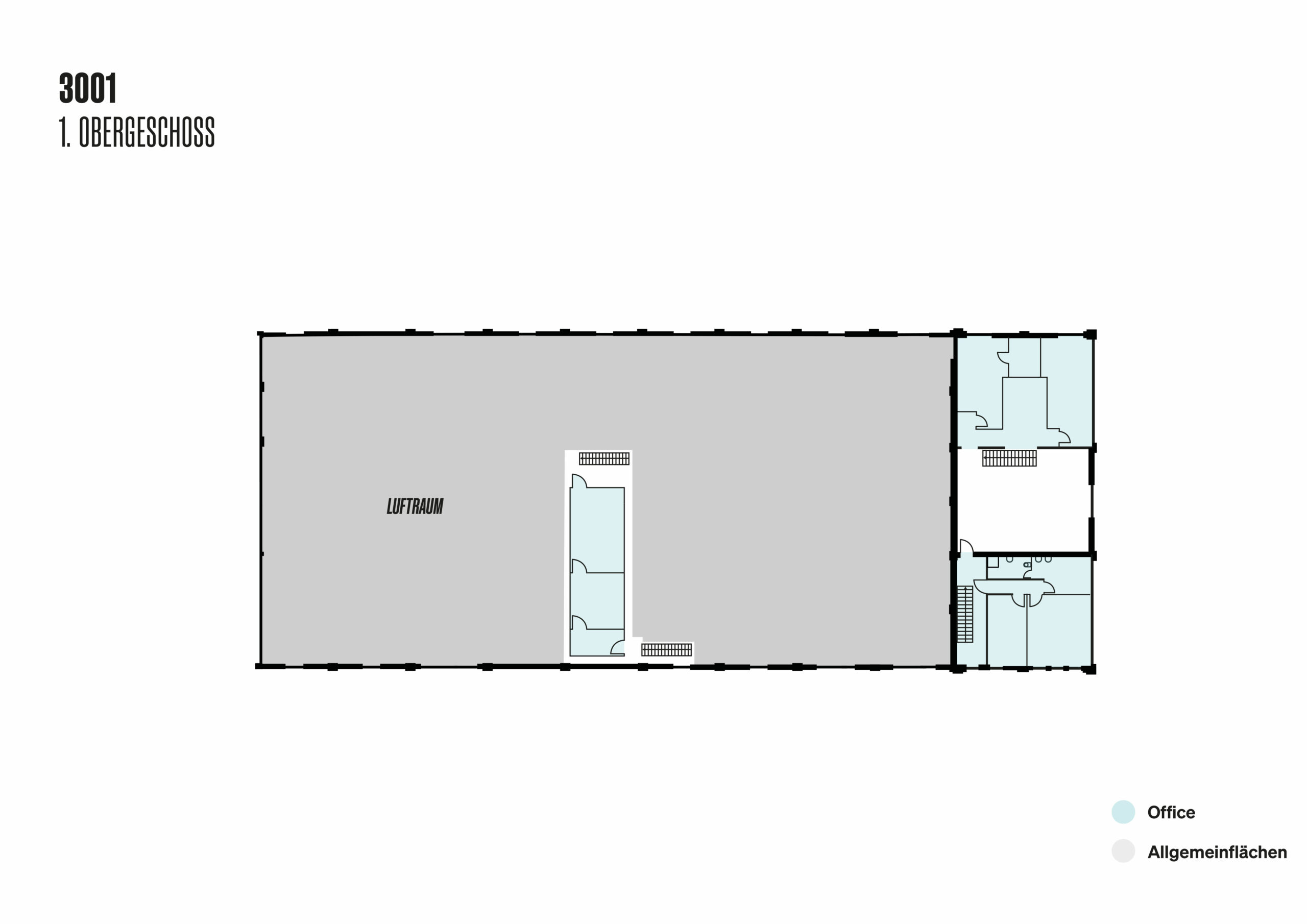
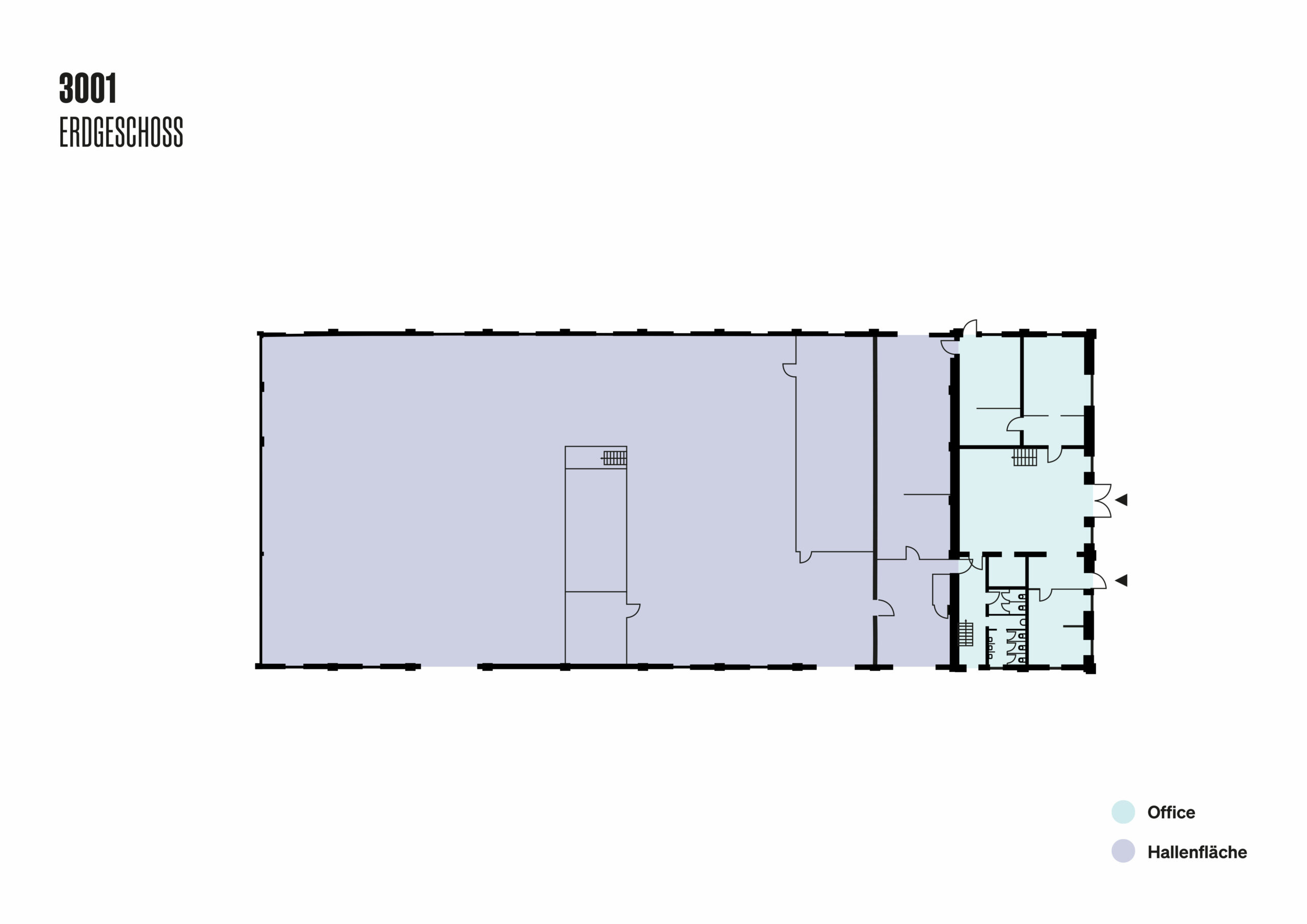
| Rental space | 2,074.54 m² |
|---|---|
| Warehouse | 1,476.33 m² |
| Office / Miscellaneous | 598.21 m² |
| Usage | Warehouse, office |
| Year of construction | 1895 |
| Available | immediately |
| Accessibility | 3 sectional doors |
Indicative floor plan
Get in touch
Send us your non-binding enquiry now.